Illhaeusern en Alsace. 600 habitants. Une carte postale bucolique de l'Est de la France, un petit village paisible au bord d'une rivière. La famille Haeberlin y a créé la célèbre Auberge de l'Ill il y a plus de 150 ans, récompensée de trois étoiles au Guide Michelin de façon continue depuis 1967. Marc Haeberlin est aux commandes de la cuisine, avec le soutien de sa sœur Danielle Baumann et de leurs enfants pour gérer le restaurant gastronomique. L'hôtel adjacent, l'Hôtel des Berges, est dirigé par Marco Baumann.
En 2007, Marc Haeberlin et Danielle Baumann ont confié à Patrick Jouin et Sanjit Manku la révision de l'architecture intérieure du restaurant de l'Auberge de l'Ill. Cette collaboration a été un succès, et leur amitié s'est poursuivie avec la création des Haras de Strasbourg en 2014, la première brasserie du chef au cœur de la capitale alsacienne.
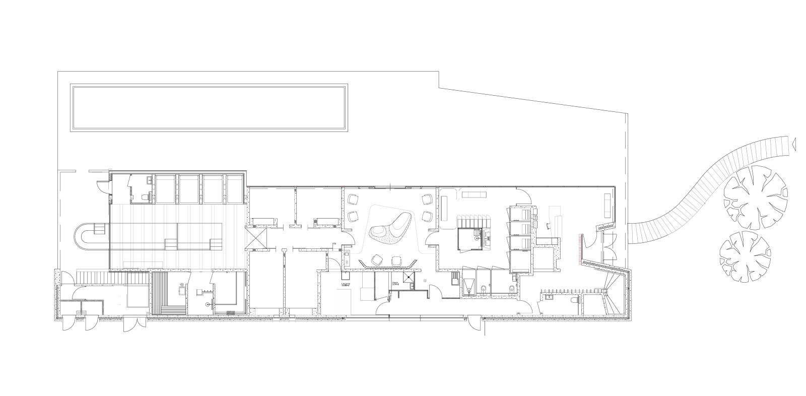
En 2016, Danielle et Marco Baumann, accompagnés de leur fils, Edouard Baumann, ont décidé d'agrandir leur capacité hôtelière en ajoutant le Spa des Saules à l'Hôtel des Berges. Ils ont donné carte blanche à Patrick Jouin, Sanjit Manku et l'architecte Silvio Rauseo pour créer un espace de repos et de relaxation, une parenthèse hors du temps.
En 2007, Marc Haeberlin et Danielle Baumann ont confié à Patrick Jouin et Sanjit Manku la révision de l'architecture intérieure du restaurant de l'Auberge de l'Ill. Cette collaboration a été un succès, et leur amitié s'est poursuivie avec la création des Haras de Strasbourg en 2014, la première brasserie du chef au cœur de la capitale alsacienne.
En 2016, Danielle et Marco Baumann, accompagnés de leur fils, Edouard Baumann, ont décidé d'agrandir leur capacité hôtelière en ajoutant le Spa des Saules à l'Hôtel des Berges. Ils ont donné carte blanche à Patrick Jouin, Sanjit Manku et l'architecte Silvio Rauseo pour créer un espace de repos et de relaxation, une parenthèse hors du temps.
